0

Asnières-sur-Seine - Au coeur du quartier Flachat, à 3 mm de la gare de Bécon les Bruyères

Asnières-sur-Seine (92600)
Réf : 259

Asnières-sur-Seine - Au coeur du quartier Flachat, à 3 mm de la gare de Bécon les Bruyères.

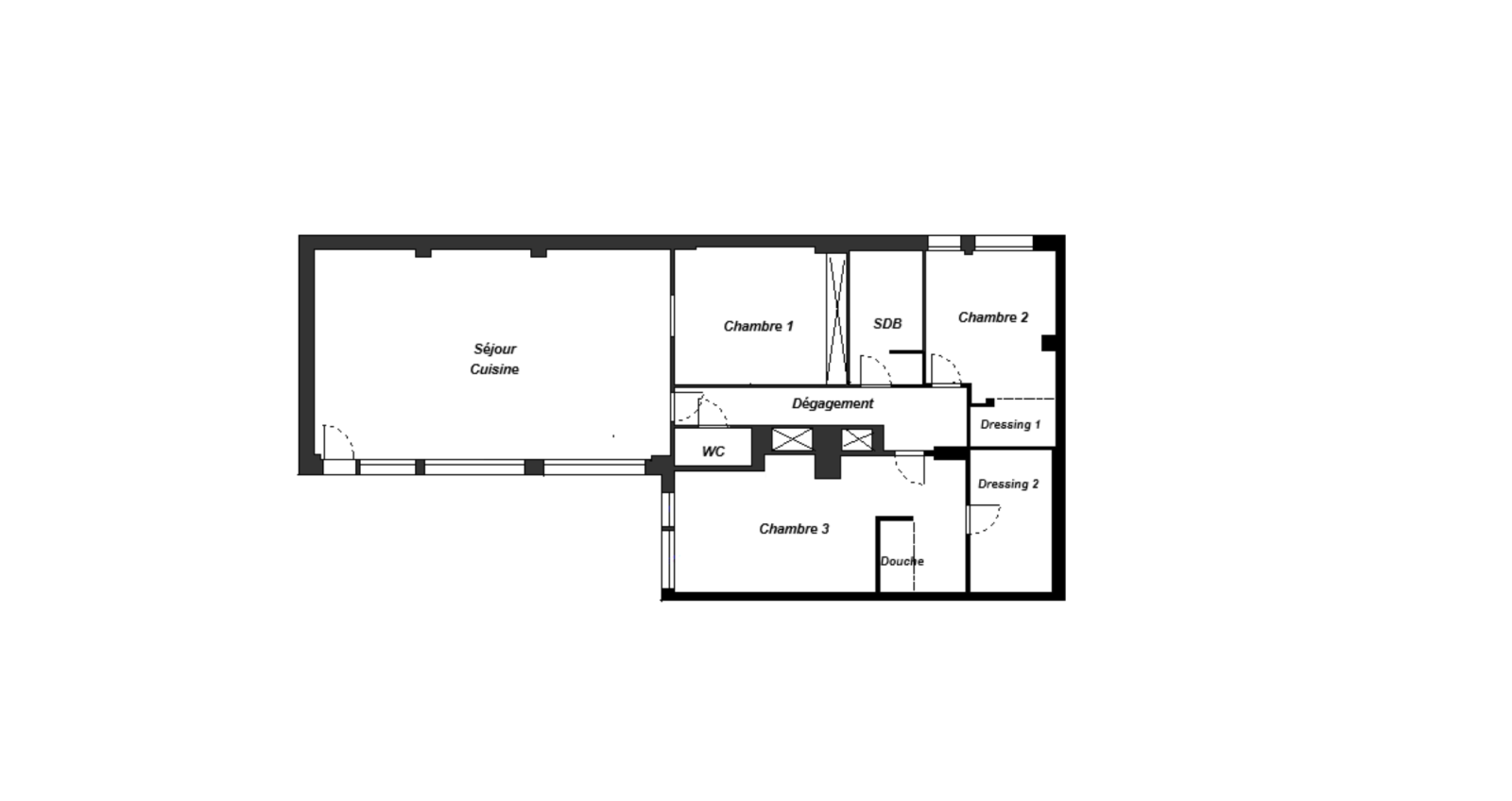
Dans une petite copropriété, un appartement de charme exposé Sud-Ouest de 110,79 m² Carrez, en parfait état et aménagé avec goût dans un esprit atelier d’artiste.

Il se compose d’une très belle pièce de réception ensoleillée de plus de 42 m² avec cuisine américaine dinatoire et équipée, d’une grande pièce supplémentaire de 14 m² pouvant faire office de salon cinéma, de bureau ou 3ème chambre et d’un WC indépendant. La partie nuit se compose d'une grande suite parentale avec une salle de bains et un grand dressing, d'une seconde chambre avec placards, d’une salle de bains avec WC.

Un emplacement de stationnement extérieur complète ce bien rare a la vente.

Nombreux rangements, très bon plan, chauffage collectif, très bon DPE en « C ».

Contacter Eve Bellaiche 06.08.76.66.10 - Paris Normandie Transactions

découvrir le bien
Prix du bien
Pièce(s) 4
Chambre(s) 3

Caractéristiques du bien

Caractéristiques Valeurs
Code postal 92600
Surface habitable (m²) 110,79 m²
Surface loi Carrez (m²) 110,79 m²
Nombre de chambre(s) 3
Nombre de pièces 4
Nb de salle de bains 2
Cuisine Américaine
Type de cuisine Equipée
Murs mitoyens 1
Nombre de parking 1
Exposition Sud-Ouest

Infos financières

Caractéristiques Valeurs
Charges 312 €
Taxe foncière annuelle 1 464 €

Localisationdu bien

  • Commerces et santé
  • Loisirs
  • Ecoles
  • Transports
  • Pratique
Ces biens peuvent vous intéresser