0

Exclusivité - Neuilly sur Seine - Avenue Charles de Gaulle - Appartement à rafraichir de 113m² Carrez

Neuilly-sur-Seine (92200)
Réf : 197

Exclusivité - Neuilly sur Seine - Avenue Charles de Gaulle

 

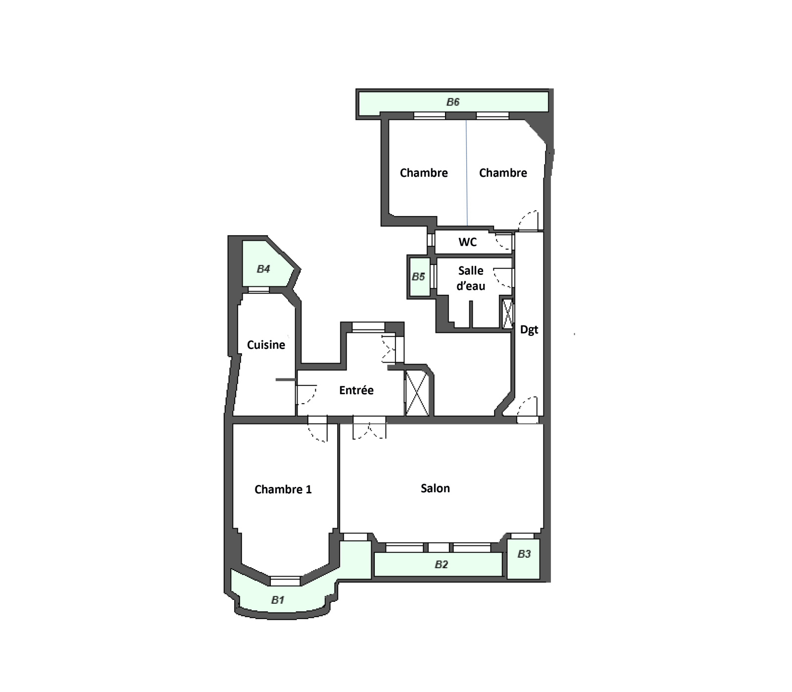
Au 7ème et dernier étage d’un bel immeuble 1930, un très bel appartement à rafraichir de 113m² Carrez bénéficiant d’une hauteur sous plafond de plus de 3 mètres.

 

Seul à l’étage, il se compose d’une jolie petite entrée, d’une grande pièce de réception ensoleillée de 33m² donnant sur un large balcon, d’une belle cuisine indépendante, d’une suite parentale de 21m² avec une petite terrasse, de deux chambres de 11m² chacune avec un balcon filant, d’une salle de bains et de WC.

De nombreuses possibilités d’aménagements sont envisageables, deux salles de bains, 1, 2 ou 3 chambres, une grande réception de 54m².

 

Nombreux rangements, fort potentiel, interphone, digicode, chauffage collectif, DPE en D.

 

Une cave complète ce bien rare à la vente.

 

Contacter Bruno Benveniste 06.81.53.47.29 - Paris Normandie Transactions 7j/7

 

Prix du bien
Pièce(s) 4
Chambre(s) 3

Caractéristiques du bien

Caractéristiques Valeurs
Code postal 92200
Surface habitable (m²) 113 m²
Surface loi Carrez (m²) 113 m²
Nombre de chambre(s) 3
Nombre de pièces 4
Etage 7
Ascenseur OUI
Nb de salle de bains 1
Cuisine Séparée
Mode de chauffage Gaz
Type de chauffage Autre
Format de chauffage Collectif
Interphone OUI
Visiophone OUI
Balcon OUI
Cave OUI
Exposition Sud-Ouest
Année de construction 1930
Quartier Sablons

Infos financières

Caractéristiques Valeurs
Charges 549 €

Localisationdu bien

  • Commerces et santé
  • Loisirs
  • Ecoles
  • Transports
  • Pratique
Ces biens peuvent vous intéresser