0

Exclusivité - Paris 7ème - Rue Saint Dominique - Appartement de 59,26m² Carrez (66,93m² au sol)

Paris (75007)
Réf : PD2024

Exclusivité - Paris 7ème - Rue Saint Dominique

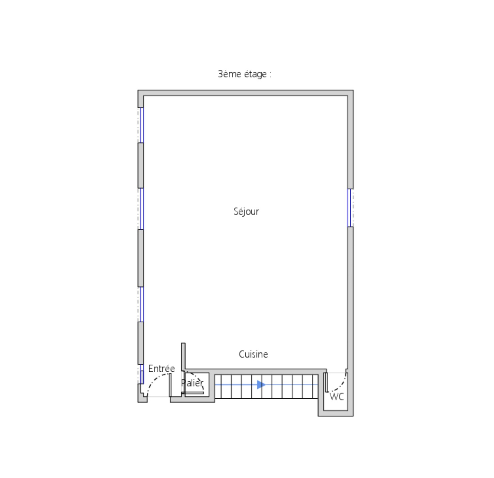
Idéalement situé, au 3ème étage d’un immeuble ancien sans ascenseur, un appartement en duplex au calme absolu sur cour et sans vis à vis, de 59,26m² Carrez (66,93m² au sol).

Il se compose d’une grande pièce à vivre de plus de 32m² avec une cheminée fonctionnelle, d’une cuisine américaine équipée et d’un WC séparé.

A l’étage, une grande chambre avec une salle de bains ouverte de plus de 20m² et d’un autre WC séparé.

Nombreux rangements, digicode, gardienne.

Contacter Delphine Paroux 06.15.09.35.00 – Paris Normandie Transactions 7j/7

Prix du bien 890 000 €
Pièce(s) 2
Chambre(s) 1

Caractéristiques du bien

Caractéristiques Valeurs
Code postal 75007
Surface habitable (m²) 66,93 m²
Surface loi Carrez (m²) 63 m²
Nombre de chambre(s) 1
Nombre de pièces 2
Etage 3
Ascenseur NON
Nb de salle de bains 1
Cuisine Américaine
Type de cuisine Equipée
Mode de chauffage Electrique
Type de chauffage Autre
Format de chauffage Individuel
Murs mitoyens 1
Exposition Est-Ouest
Année de construction 1907

Infos financières

Caractéristiques Valeurs
Prix de vente honoraires TTC inclus 890 000 €
Prix de vente honoraires TTC exclus 847 619 €
Honoraires TTC à la charge acquéreur 5 %
Charges 315 €

Bilans énergétiques

DPE GES
Ce bien vous intéresse ?
Fieldset par défaut
Fieldset par défaut
Validation

* Champs obligatoires

Contacter l'agence
Validation
Les informations recueillies sur ce formulaire sont enregistrées dans un fichier informatisé par La Boite Immo agissant comme Sous-traitant du traitement pour la gestion de la clientèle/prospects de l'Agence / du Réseau qui reste Responsable du Traitement de vos Données personnelles. La base légale du traitement repose sur l'intérêt légitime de l'Agence / du Réseau. Elles sont conservées jusqu'à demande de suppression et sont destinées à l'Agence / au Réseau. Conformément à la loi « informatique et libertés », vous disposez des droits d’accès, de rectification, d’effacement, d’opposition, de limitation et de portabilité de vos données. Vous pouvez retirer votre consentement à tout moment en contactant directement l’Agence / Le Réseau. Consultez le site https://cnil.fr/fr pour plus d’informations sur vos droits. Si vous estimez, après avoir contacté l'Agence / le Réseau, que vos droits « Informatique et Libertés » ne sont pas respectés, vous pouvez adresser une réclamation à la CNIL. Nous vous informons de l’existence de la liste d'opposition au démarchage téléphonique « Bloctel », sur laquelle vous pouvez vous inscrire ici : https://www.bloctel.gouv.fr Dans le cadre de la protection des Données personnelles, nous vous invitons à ne pas inscrire de Données sensibles dans le champ de saisie libre.
Ce site est protégé par reCAPTCHA, les Politiques de Confidentialité et les Conditions d'Utilisation de Google s'appliquent.

Localisationdu bien

  • Commerces et santé
  • Loisirs
  • Ecoles
  • Transports
  • Pratique