0

Co-exclusivité, Paris 7ème - Cité de l’Alma - Duplex à rénover de 136,11m² Carrez et 151,18m² au sol

Paris (75007)
Réf : Alma2

Co-exclusivité, Paris 7ème - Cité de l’Alma - Avenue Bosquet/Avenue Rapp - Métros L9 et L8

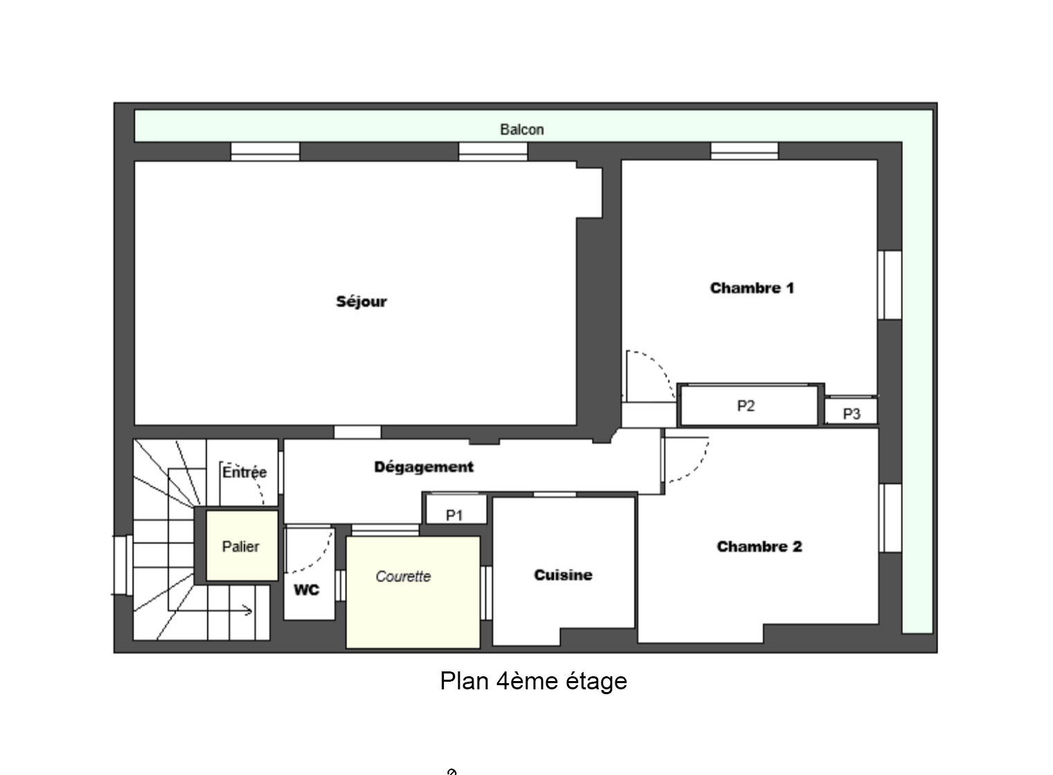
Situé aux derniers étages d’un immeuble parisien, au 4ème étage par l’escalier (et 5ème), un grand appartement lumineux en duplex à rénover ou restructurer d’une superficie de 136,11m² Carrez et 151,18m² au sol.

Il se compose en l’état d’une belle pièce de réception avec balcon filant ensoleillé et cheminée, d’un WC invité, d’une cuisine et de 4 chambres avec une grande salle de bains, une salle de douche et un autre WC indépendant.

Nombreuses configurations possibles, entre autres, une très grande pièce de réception avec salle à manger et cuisine américaine de plus de 65m² et 3 chambres avec salle de bains, salle de douche et dressing.

Parquet, cheminée, chauffage individuel au gaz. DPE en « E », très faibles charges. Bien à très fort potentiel après rénovation.

Contacter Bruno Benveniste 06 81 53 47 29 – Paris Normandie Transactions (7j/7).

Prix du bien 1 700 000 €
Pièce(s) 6
Chambre(s) 4

Caractéristiques du bien

Caractéristiques Valeurs
Code postal 75007
Surface habitable (m²) 136,11 m²
Surface loi Carrez (m²) 136,11 m²
Nombre de chambre(s) 4
Nombre de pièces 6
Etage 5
Nombre de niveaux 2
Ascenseur NON
Nb de salle de bains 1
Nb de salle d'eau 1
Cuisine Séparée
Mode de chauffage Gaz
Type de chauffage Autre
Format de chauffage Individuel
Interphone OUI
Balcon OUI

Infos financières

Caractéristiques Valeurs
Prix de vente honoraires TTC inclus 1 700 000 €
Prix de vente honoraires TTC exclus 1 619 048 €
Honoraires TTC à la charge acquéreur 5 %
Taxe foncière annuelle 2 559 €

Bilans énergétiques

DPE GES
Ce bien vous intéresse ?
Fieldset par défaut
Fieldset par défaut
Validation

* Champs obligatoires

Contacter l'agence
Validation
Les informations recueillies sur ce formulaire sont enregistrées dans un fichier informatisé par La Boite Immo agissant comme Sous-traitant du traitement pour la gestion de la clientèle/prospects de l'Agence / du Réseau qui reste Responsable du Traitement de vos Données personnelles. La base légale du traitement repose sur l'intérêt légitime de l'Agence / du Réseau. Elles sont conservées jusqu'à demande de suppression et sont destinées à l'Agence / au Réseau. Conformément à la loi « informatique et libertés », vous disposez des droits d’accès, de rectification, d’effacement, d’opposition, de limitation et de portabilité de vos données. Vous pouvez retirer votre consentement à tout moment en contactant directement l’Agence / Le Réseau. Consultez le site https://cnil.fr/fr pour plus d’informations sur vos droits. Si vous estimez, après avoir contacté l'Agence / le Réseau, que vos droits « Informatique et Libertés » ne sont pas respectés, vous pouvez adresser une réclamation à la CNIL. Nous vous informons de l’existence de la liste d'opposition au démarchage téléphonique « Bloctel », sur laquelle vous pouvez vous inscrire ici : https://www.bloctel.gouv.fr Dans le cadre de la protection des Données personnelles, nous vous invitons à ne pas inscrire de Données sensibles dans le champ de saisie libre.
Ce site est protégé par reCAPTCHA, les Politiques de Confidentialité et les Conditions d'Utilisation de Google s'appliquent.

Localisationdu bien

  • Commerces et santé
  • Loisirs
  • Ecoles
  • Transports
  • Pratique