0
Sous-offre
Exclusif

Exclusivité - Paris 4ème - Rue du Temple - Appartement de 43,92m² Carrez

Paris (75004)
Réf : 276

Exclusivité - Paris 4ème - Rue du Temple – A deux pas de la rue Rambuteau et à 2mn du Métro Hôtel de Ville (M1).

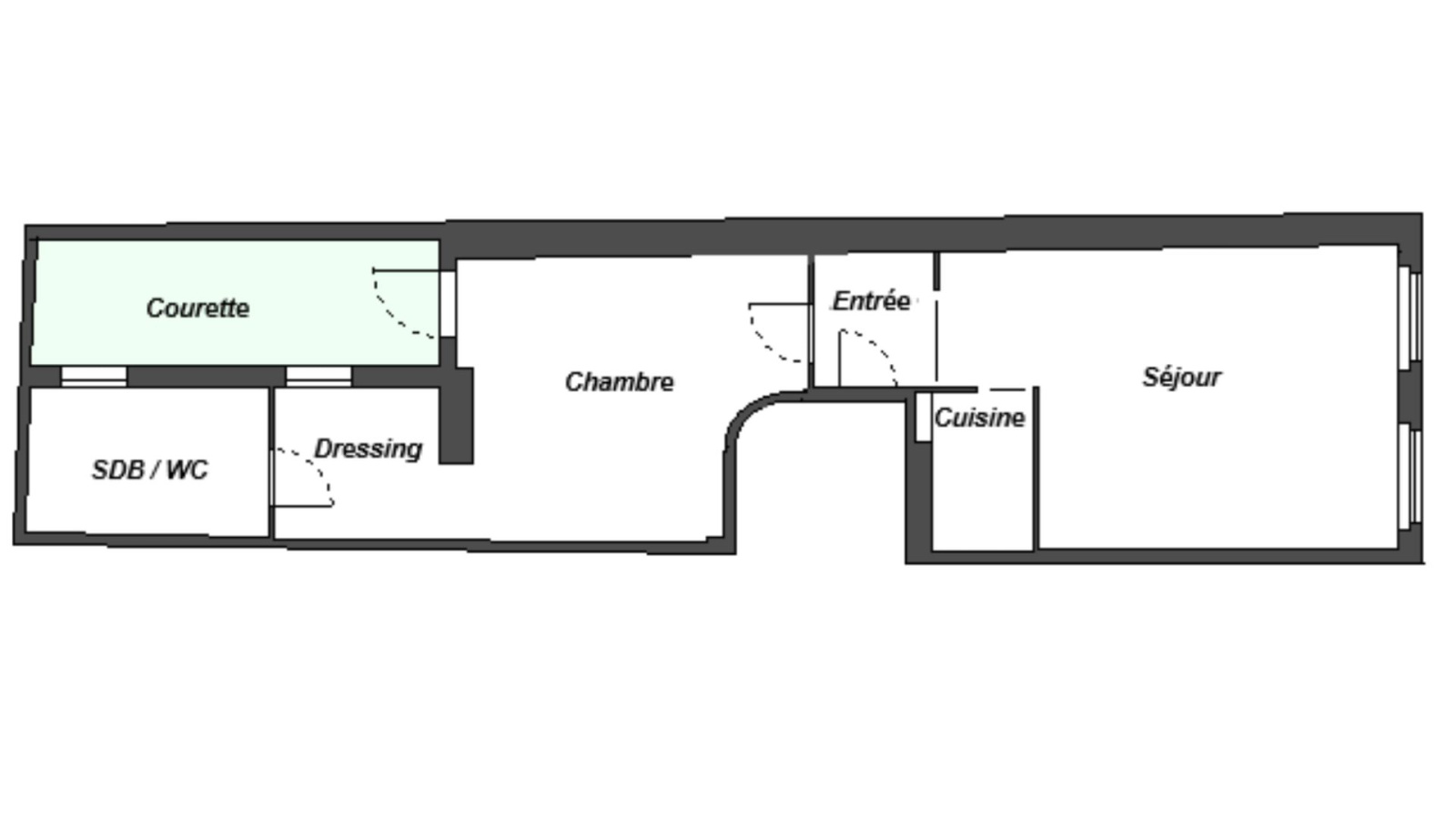
Dans le Marais, au cœur du Paris historique, au 1er étage sur rue d’une petite copropriété du milieu du 19ème Siècle, un appartement à rénover idéalement placé de 43,92m² Carrez exposé Sud-Est.

Il se compose d’un beau séjour avec deux grandes fenêtres de 18,37m², d’une cuisine séparée, d’une très grande chambre avec dressing de plus de 16m² et d’une belle salle de bains avec WC.

Une courette en jouissance exclusive de 7,32m² complète ce bien rare à la vente.

Beaux volumes, poutres apparentes, appartement de caractère.

Contacter Anne Cataldo - 06 60 90 17 53 - anne@pnt.immo - Paris Normandie Transactions - 7/7

Prix du bien 530 000 €
Pièce(s) 2
Chambre(s) 1

Caractéristiques du bien

Caractéristiques Valeurs
Code postal 75004
Surface habitable (m²) 43,92 m²
Surface loi Carrez (m²) 43,92 m²
Nombre de chambre(s) 1
Nombre de pièces 2
Etage 1
Nb de salle de bains 1
Cuisine Séparée
Mode de chauffage Electrique
Type de chauffage Convecteur
Format de chauffage Individuel
Interphone OUI
Terrasse OUI
Année de construction 1850

Infos financières

Caractéristiques Valeurs
Prix de vente honoraires TTC inclus 530 000 €
Prix de vente honoraires TTC exclus 503 500 €
Honoraires TTC à la charge acquéreur 5,26 %
Charges 220 €
Taxe foncière annuelle 758 €

Bilans énergétiques

DPE GES
Ce bien vous intéresse ?
Fieldset par défaut
Fieldset par défaut
Validation

* Champs obligatoires

Contacter l'agence
Validation
Les informations recueillies sur ce formulaire sont enregistrées dans un fichier informatisé par La Boite Immo agissant comme Sous-traitant du traitement pour la gestion de la clientèle/prospects de l'Agence / du Réseau qui reste Responsable du Traitement de vos Données personnelles.
La base légale du traitement repose sur l’intérêt légitime de l'Agence / du Réseau.
Elles sont conservées jusqu'à demande de suppression et sont destinées à l'Agence / au Réseau.
Conformément à la loi « informatique et libertés », vous pouvez exercer votre droit d'accès aux données vous concernant et les faire rectifier en contactant l'Agence / le Réseau.
Si vous estimez, après avoir contacté l'Agence / le Réseau, que vos droits « Informatique et Libertés » ne sont pas respectés, vous pouvez adresser une réclamation à la CNIL.
Nous vous informons de l’existence de la liste d'opposition au démarchage téléphonique « Bloctel », sur laquelle vous pouvez vous inscrire ici : https://www.bloctel.gouv.fr 
Dans le cadre de la protection des Données personnelles, nous vous invitons à ne pas inscrire de Données sensibles dans le champ de saisie libre
Ce site est protégé par reCAPTCHA, les Politiques de Confidentialité et les Conditions d'Utilisation de Google s'appliquent.

Localisationdu bien

  • Commerces et santé
  • Loisirs
  • Ecoles
  • Transports
  • Pratique