0

Exclusivité - Paris 11ème - rue Boulle - Appartement de 44,50m² Carrez exposé plein Sud

Paris (75011)
Réf : 092

Exclusivité - Paris 11ème - rue Boulle - A 2mn (150m) du métro Bréguet-Sabin.

Au 3ème étage d’un immeuble contemporain, au calme absolu et sans vis-à-vis proche, un appartement de 44,50m² Carrez exposé plein Sud.

 

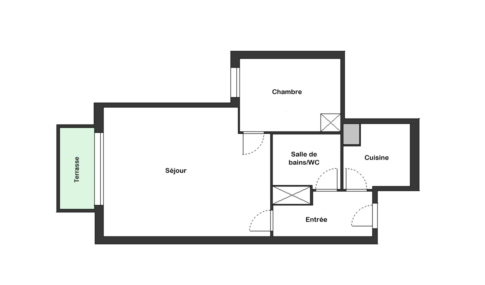
Il se compose d’un grand salon ensoleillé de 23m² donnant sur une petite terrasse, d’une chambre, d’une cuisine équipée et d’une salle de bains avec WC.

 

L’appartement est en bon état et ne nécessite pas de travaux, cependant l’absence de murs porteurs permet d’envisager d’autres configurations, comme par exemple salon et cuisine américaine (à la place de la salle de bains), WC séparés et salle de bains (à la place de la cuisine). Voir plan.

Local vélos, interphone, digicode, gardienne à temps partiel, très faibles charges, chauffage électrique, Diag Perf. Energétique en C et A.

Une cave complète ce bien rare à la vente.

 

Contacter Bruno Benveniste 06 81 53 47 29 - paris Normandie Transactions 7j/7

Prix du bien
Pièce(s) 2
Chambre(s) 1

Caractéristiques du bien

Caractéristiques Valeurs
Code postal 75011
Surface habitable (m²) 44,50 m²
Surface loi Carrez (m²) 44,50 m²
Nombre de chambre(s) 1
Nombre de pièces 2
Etage 3
Ascenseur OUI
Nb de salle de bains 1
Cuisine Séparée
Type de cuisine Equipée
Mode de chauffage Electrique
Type de chauffage Autre
Format de chauffage Individuel
Interphone OUI
Terrasse OUI
Cave OUI
Exposition Sud

Infos financières

Caractéristiques Valeurs
Charges 109 €
Taxe foncière annuelle 725 €

Localisationdu bien

  • Commerces et santé
  • Loisirs
  • Ecoles
  • Transports
  • Pratique
Ces biens peuvent vous intéresser