0

 Exclusivité - Paris 17ème, côté Neuilly – Rue d’Armenonville - Grand studio de 37m² Carrez

Paris (75017)
Réf : 028

Exclusivité - Paris 17ème, côté Neuilly - Rue d’Armenonville


Face au Palais des Congrès, à l’angle de la rue Gustave Charpentier, à quelques minutes à pied de la station Porte Maillot (ligne 1), des commerces de la rue de Chartres et de la rue Madeleine Michelis.


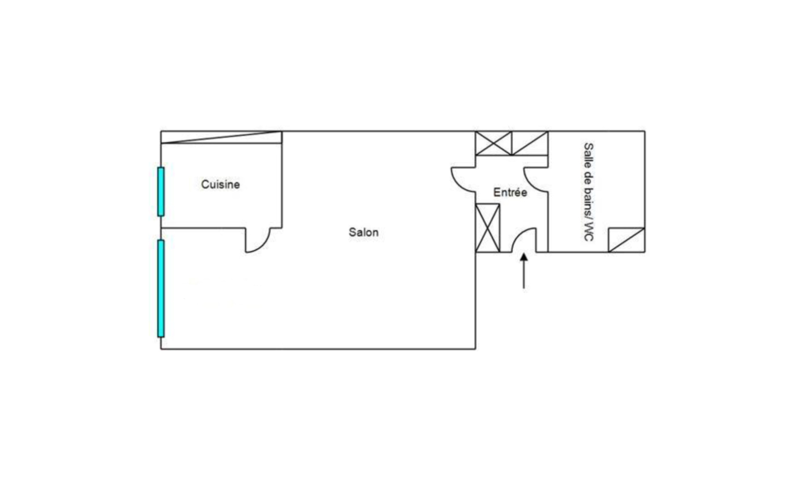
Au 6ème étage avec ascenseur d’un immeuble récent, un grand studio lumineux et à rénover de 37m² Carrez.

Il se compose d’une petite entrée avec des rangements, d’une grande pièce à vivre de plus de 28m² avec une cuisine séparée et d’une belle salle de bains avec WC. Nombreux aménagements possibles, création d’une chambre avec cloison en verre atelier par exemple.

Très bon plan sans perte de place, vue dégagée.


Un grand box fermé et une cave complètent ce bien rare à la vente.

Résidence très bien entretenue et sécurisée avec gardien, chauffage collectif, faibles charges.


Idéal investissement ou pied à terre, bon rapport locatif.


Contacter Anne Cataldo 06.60.90.17.53 - Paris Normandie Transactions 7j/7

Prix du bien
Pièce(s) 1

Caractéristiques du bien

Caractéristiques Valeurs
Code postal 75017
Surface habitable (m²) 37 m²
Nombre de pièces 1
Etage 6
Nb de salle de bains 1
Cuisine Séparée
Mode de chauffage Autre
Type de chauffage Radiateur
Format de chauffage Collectif
Interphone OUI
Visiophone OUI
Nombre de garage 1
Cave OUI
Exposition Sud-Est
Année de construction 1978
Quartier Ternes-Maillot

Infos financières

Caractéristiques Valeurs
Charges 149 €
Taxe foncière annuelle 945 €

Localisationdu bien

  • Commerces et santé
  • Loisirs
  • Ecoles
  • Transports
  • Pratique
Ces biens peuvent vous intéresser