0
Sous-compromis
Exclusif
Coup de coeur

Exclusivité – Paris 17ème – rue Viète – métro Wagram – à 100m du Lycée Carnot

Paris (75017)
Réf : 318

Exclusivité - Paris 17ème - rue Viète - Métro Wagram - A 100m du Lycée Carnot



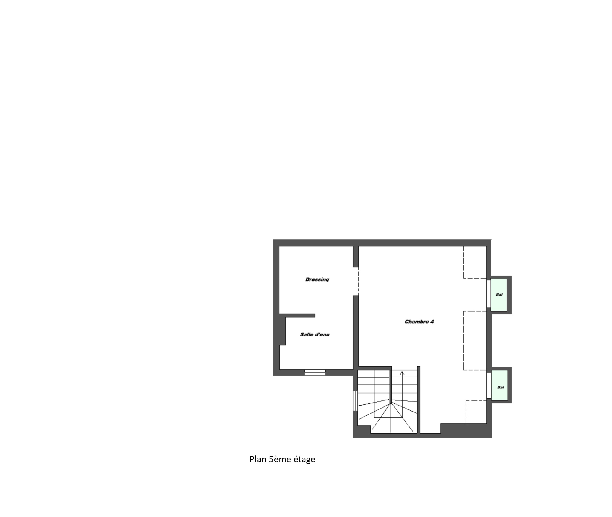
Aux derniers étages d’un bel immeuble haussmannien, un très beau duplex ensoleillé et traversant de 191,45m² Carrez et 200m² au sol. Il se compose d’une belle galerie d’entrée, d’une grande pièce de réception de 80m² comprenant un salon, une cuisine américaine entièrement équipée, un petit cellier et une salle à manger avec une cheminée fonctionnelle donnant sur un long et joli balcon arboré, d’un WC invité, d’une suite parentale en duplex de 30m² avec son dressing et sa salle de bains, de trois autres chambres (13m² avec sa salle de douche, 19m² et 16m²), d’une grande salle de bains avec WC et d’un espace buanderie.


Une grande cave, une chambre de service de 6,5m² à proximité immédiate de l’appartement et un emplacement de parking complète ce bien rare à la vente.


Très bon DPE en « D », gardienne à plein temps et à demeure, chauffage collectif, parquet, moulures, cheminée.


Contacter Bruno Benveniste 06 81 53 47 29 – Paris Normandie Transactions 7j/7

Prix du bien 2 700 000 €
Pièce(s) 6
Chambre(s) 4

Caractéristiques du bien

Caractéristiques Valeurs
Code postal 75017
Surface habitable (m²) 191,45 m²
Surface loi Carrez (m²) 191,45 m²
Nombre de chambre(s) 4
Nombre de pièces 6
Etage 5
Nombre de niveaux 2
Ascenseur OUI
Nb de salle de bains 2
Nb de salle d'eau 1
Cuisine Américaine
Type de cuisine Equipée
Mode de chauffage Gaz
Type de chauffage Autre
Format de chauffage Collectif
Interphone OUI
Balcon OUI
Cave OUI
Surface cave (m²) 9.65
Exposition Est-Ouest

Infos financières

Caractéristiques Valeurs
Prix de vente honoraires TTC inclus 2 700 000 €
Prix de vente honoraires TTC exclus 2 571 428 €
Honoraires TTC à la charge acquéreur 5 %
Charges 1 220 €
Taxe foncière annuelle 4 441 €

Bilans énergétiques

DPE GES
Ce bien vous intéresse ?
Fieldset par défaut
Fieldset par défaut
Validation

* Champs obligatoires

Contacter l'agence
Validation
Les informations recueillies sur ce formulaire sont enregistrées dans un fichier informatisé par La Boite Immo agissant comme Sous-traitant du traitement pour la gestion de la clientèle/prospects de l'Agence / du Réseau qui reste Responsable du Traitement de vos Données personnelles. La base légale du traitement repose sur l'intérêt légitime de l'Agence / du Réseau. Elles sont conservées jusqu'à demande de suppression et sont destinées à l'Agence / au Réseau. Conformément à la loi « informatique et libertés », vous disposez des droits d’accès, de rectification, d’effacement, d’opposition, de limitation et de portabilité de vos données. Vous pouvez retirer votre consentement à tout moment en contactant directement l’Agence / Le Réseau. Consultez le site https://cnil.fr/fr pour plus d’informations sur vos droits. Si vous estimez, après avoir contacté l'Agence / le Réseau, que vos droits « Informatique et Libertés » ne sont pas respectés, vous pouvez adresser une réclamation à la CNIL. Nous vous informons de l’existence de la liste d'opposition au démarchage téléphonique « Bloctel », sur laquelle vous pouvez vous inscrire ici : https://www.bloctel.gouv.fr Dans le cadre de la protection des Données personnelles, nous vous invitons à ne pas inscrire de Données sensibles dans le champ de saisie libre.
Ce site est protégé par reCAPTCHA, les Politiques de Confidentialité et les Conditions d'Utilisation de Google s'appliquent.

Localisationdu bien

  • Commerces et santé
  • Loisirs
  • Ecoles
  • Transports
  • Pratique
Ces biens peuvent vous intéresser