0

Exclusivité - Léré, à 15mn de Sancerre - Maison bourgeoise de 185m² habitables sur un terrain clos de 1500 m²

Sancerre (18300)
Réf : 083

Exclusivité – Léré, à 15mn de Sancerre, au cœur d’un village authentique disposant de tous les commerces de proximité ainsi que d’infrastructures scolaires et médicales, une belle maison bourgeoise du début du XXème siècle d’environ 185m² habitables sur un terrain clos d'environ 1500 m².

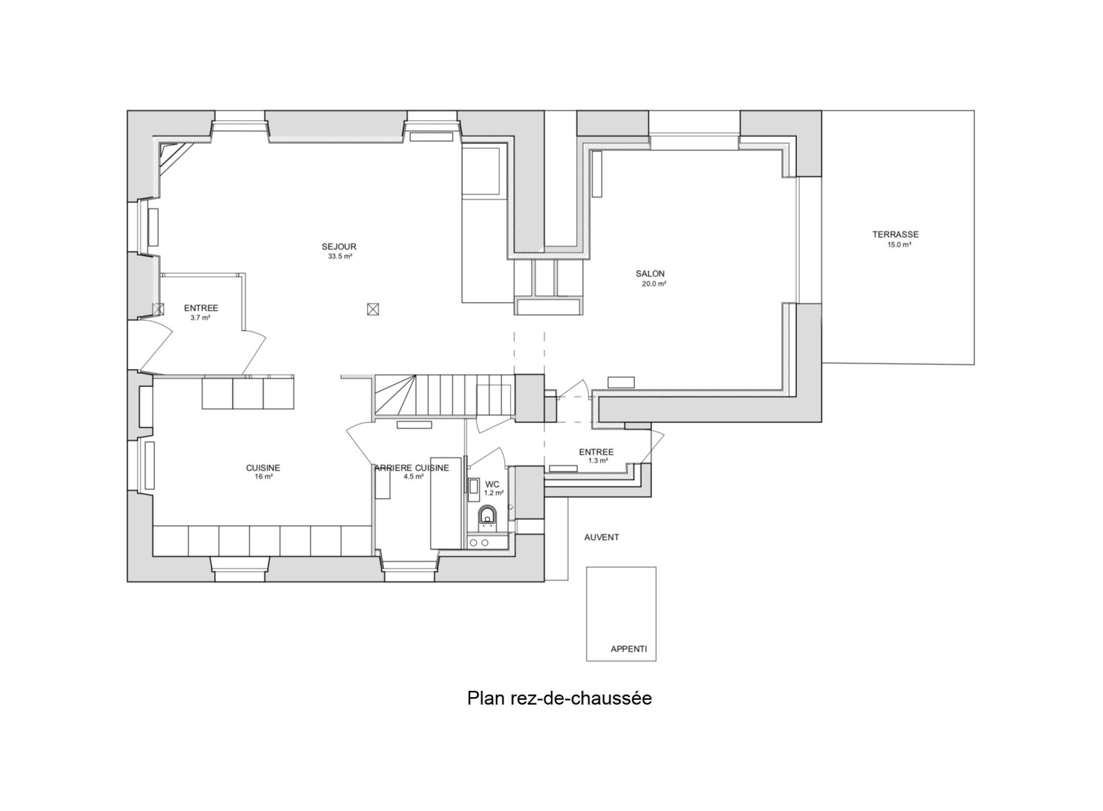
Totalement rénovée par un architecte en 2021, cette maison se compose :

Au rez-de-chaussée, d’une belle pièce de réception traversante de plus de 55m² avec cheminée et parquet à chevrons ouvrant sur une terrasse et le jardin exposés plein Sud, d’une vaste cuisine équipée, d’une buanderie et de WC séparés ;

Au 1er étage, d’une suite parentale avec dressing de 15m² et de deux chambres de 12m², d’une salle de bains avec douche et baignoire et de WC séparés ;

Au 2ème étage, d’un grenier sous charpente d’environ 50m² à rénover (arrivées plomberie, électricité et VMC déjà réalisées).

A l’abri des regards, le jardin clos, les arbres fruitiers et la serre créent un environnement propice à la détente.

Une belle cave enterrée sous toute la surface de la maison et un vaste garage complètent ce bien rare à la vente.

Contacter Anne Cataldo 06 60 90 17 53 - Paris Normandie Transactions 7j/7

Prix du bien
Pièce(s) 5
Chambre(s) 3

Caractéristiques du bien

Caractéristiques Valeurs
Code postal 18300
Surface habitable (m²) 185 m²
surface terrain 1 500 m²
Nombre de chambre(s) 3
Nombre de pièces 5
Nombre de niveaux 2
Nb de salle de bains 1
Cuisine Séparée
Type de cuisine Equipée
Mode de chauffage Pompe à chaleur
Type de chauffage Convecteur
Format de chauffage Individuel
Terrasse OUI
Nombre de garage 1
Cave OUI
Nombre de parking 1
Exposition Sud
Année de construction 1904
Terrain arboré OUI

Infos financières

Caractéristiques Valeurs
Taxe foncière annuelle 961 €

Localisationdu bien

  • Commerces et santé
  • Loisirs
  • Ecoles
  • Transports
  • Pratique
Ces biens peuvent vous intéresser